The Hanley
Beautifully spacious 3 Bedroom Home including a separate living room.
Summary of Features
- A versatile three-bedroom home with bright interiors.
- Kitchen/dining space for cooking and socialising.
- Separate living room to unwind in.
- Handy cloakroom on the ground floor.
- Ensuite to the main bedroom plus two additional bedrooms.
- Family bathroom with modern finishes.
Overview
3 Bedrooms
2 Bathrooms
Parking Spaces
970 Sq Ft
Plot Prices & Availability
Plot 6: £TBC
Off Plan Incentives Available
Saffron Grove, Off Welland Road, Tunnel Hill, Upton upon Severn WR8 0SY
Contact our team:
07896 886448 | EMAIL
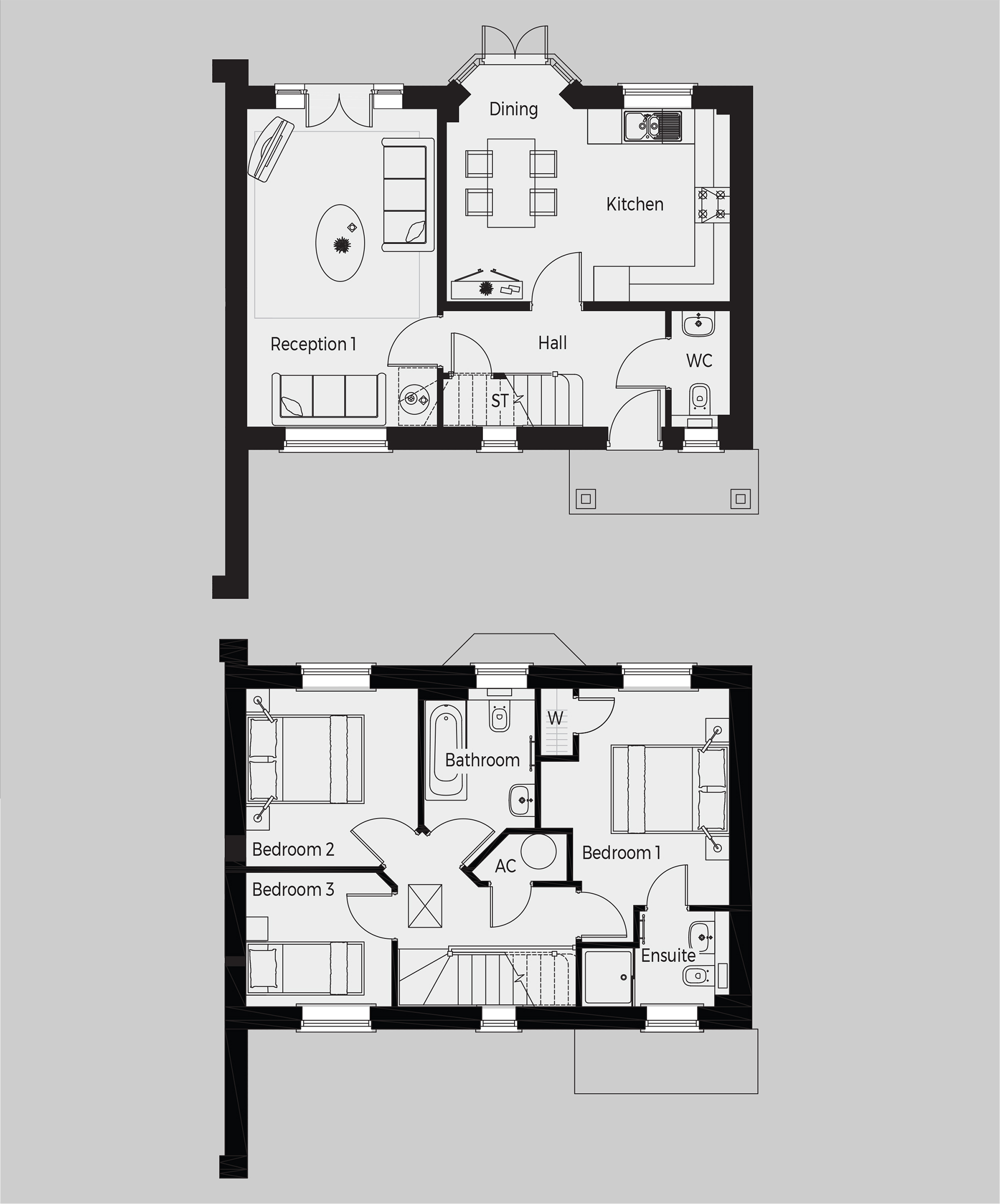
Plot 6
Ground Floor
- Reception 1 – 3225 x 5400mm (10’7” x 17’9”)
- Kitchen – 2410 x 3275mm (7’11” x 10’9”)
- Dining – 2390 x 4020mm (7’10” x 13’2”)
- Cloak Room – 1000 x 1975mm (3’3” x 6’6”)
First Floor
- Bedroom 1 – 3194 x 3682mm (10’6” x 12’1”)
- Ensuite – 2501 x 1625mm (8’3” x 5’4”)
- Bedroom 2 – 2916 x 3027mm (9’7” x 9’11”)
- Bedroom 3 – 2471 x 2280mm (8’1” x 7’6”)
- Bathroom – 1879 x 2375mm (6’2” x 7’10”)
Total house size: 970 sq.ft.
Plus 2 parking spaces.
Specification
Energy Efficient Features
- Air source heat pump
- A-rated appliances
- High performance double glazed white UPVC flush casement windows and patio doors
- High performance insulation in the floor and walls
- Low energy lighting with LED technology
- Thermostatically controlled radiator valves
- Provision of compost area, recycling bins and rainwater butt*
- All properties air leakage tested
Electric car charger
Stylish Kitchen & Utility
- Individually designed kitchen with either laminate or quartz worktops and upstands*
- Electric fan assisted single* or double* oven with integrated grill
- Four* or Five* ring ceramic hob with large feature extractor hood
- Integrated dishwasher and fridge freezer*
- Integrated microwave*
- Porcelain floor tiling by Minoli
- Pelmet lights to kitchen units (where pelmets are available)
- Soft closing doors and drawers
- Washing machine and tumble dryer plumbing and electrics* (where no utility)
- Stainless steel sink (Utility)
- Laminate worktops with upstand (Utility)
- Porcelain floor tiling by Minoli (Utility)
- Plumbing and electrics for washing machine (Utility)
- Electrics for tumble dryer (Utility)
Heating, Lighting, Electrical And Media
- Electric Vaillant* air source heat pump with compatible water cylinder
- LED feature downlights throughout (where specified)
- Smoke detectors throughout
- TV point to the lounge and bedroom 1
- CAT 5 cable from BT master point to lounge and study or the smallest bedroom, fibre broadband to all homes
- Multi zone underfloor ground floor heating & 2nd zone upstairs, a 3rd zone is also included where a bedroom is over the garage*
Contemporary bathrooms & Ensuites
- Sanitaryware by ROCA with chrome Hansgrohe fittings*
- Chrome towel rail radiators to bathroom, cloakroom and ensuite
- Thermostatic shower systems*
- Half height Minoli tiles to walls with sanitary ware in bathrooms and ensuites and full height tiling to shower cubicles
- White freestanding or standard bath in the main bathroom*
- Shower and screen in main and ensuite bathrooms
- Porcelain floor tiling by Minoli in bathrooms where a free standing bath is located*
Internal Features
- White handrail and square fluted newel posts
- High performance composite front doors with chrome fittings
- Oak veneer internal doors with stylish chrome ironmongery
- Built-in wardrobes (where shown) with light oak veneer shelving and chrome hanging rails
- Walls painted in Dulux white or equivalent
- Woodwork painted in white gloss
- Oversized skirting boards
External Features
- Front door, low energy, PIR controlled light
- Wired front doorbell
- Landscaping and turf to the front and rear gardens
- External cold-water tap
- Security Alarm system*
*Plot specific or where applicable.
We reserve the right to change specifications of the items above.







